Подвес грузового бокса в гараже с подъемом и опусканием

Еще до приобретения бокса для перевозки груза я задумался о том где же его мне хранить.
К счастью у меня есть гараж (пусть не свой, а арендованный, но все же есть) с металлическими стенами и бетонным потолком. Поэтому я начал продумывать как разместить бокс удобно.
Не буду описывать весь процесс изысканий, перейду сразу к найденному и реализованному решению: решено было сделать крепление на тросах, позволяющее зафиксировать бокс в двух положениях: "хранение" (у потолка), "обслуживание" (на уровне груди), а также легкое перемещение между этими положениями и снятие/установку на автомобиль.
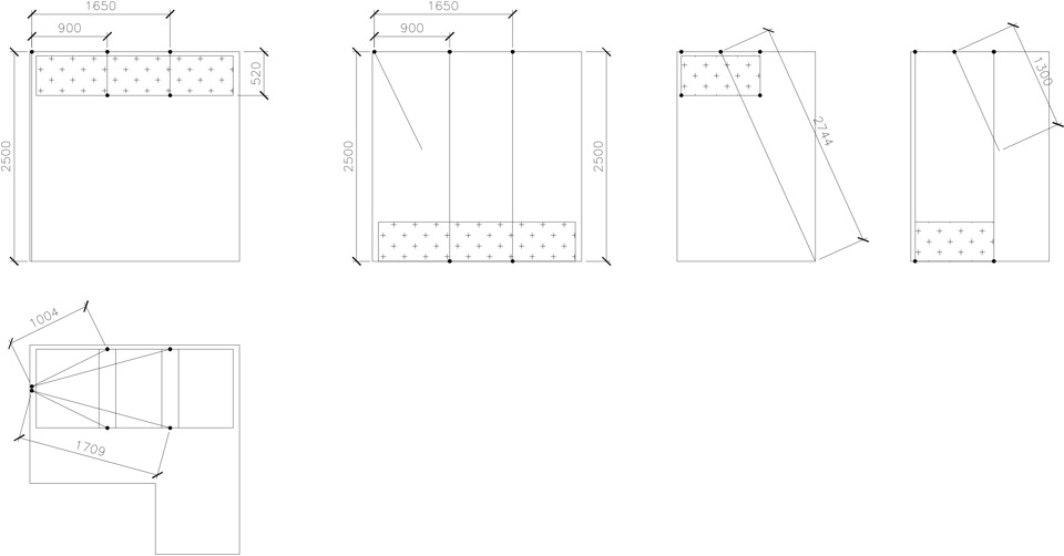
Первое что я сделал, это обмерял гараж, и нашел габаритные размеры как автомобиля, так и бокса. Затем отрисовал всё в масштабе в программе Microsoft Visio, затем начал в ней играться (Visio позволяет легко перемещать предметы на листе), пытаясь найти лучшее расположение элементов.
Идеально было бы закрепить бокс по центру потолка гаража, прямо над автомобилем — что бы при подъеме/опускании бокс перемещался только по вертикали, без смещения вбок. К сожалению у меня в гараже по его осевой линии проходит труба системы пожаротушения, поэтому закрепить бокс по центру не получилось (по той же причине я не стал приобретать и устанавливать готовые решения для подвеса боксов).
В итоге я получил две схемы:
автомобиль с установленным на нем боксом
бокс в различных его положениях
Visio позволяет легко точно определить размеры элементов — все было описано, измерено и я поехал в магазин за материалами.
Самым сложным вопросом для меня было правильно определить нагрузку на элементы (конечно очень не хотелось уронить бокс ни на себя ни на автомобиль) и как следствие выбрать правильные крепления и ролики. Сразу скажу — на фото финальный вариант, перед которым был еще промежуточный — крайние к стене ролики крепились на анкерном болту с диаметром болта примерно 3 мм. — после примерно полугода эксплуатации он начал разгибаться — пришлось заменить на 5-6мм.
Что в итоге потребовалось:
— ролики центральные = 4 шт
— ролики боковые (двойные) = 2 шт
— крюк для зацепа веревки = 2 + 2 шт
— собственно веревка = метров 20 (брал с запасом)
— черенок для лопаты = 2 шт
— утеплитель для водопроводных труб (серый мягкий) = 2 шт
— болт М6/60мм + гайки = 4 шт
Поясню для чего потребовались черенки для лопат — подвес задумывался как универсальный, что бы можно было при необходимости хранить любые длинномеры (трубы, серфинг и т.д.), поэтому нужны были горизонтальные (при этом мягкие снаружи) перекладины. Черенки оказались идеальными по соотношению цена/крепость/длина.
Собственно реализация:
1. собрать веревочную конструкцию — по схеме из Visio прикрутить ролики к потолку, крюки к стене, продеть веревку, сделав 4 кольца, которыми будем цеплять груз.
Также на той части веревки, которую будем тянуть вниз делаю кольцо, что бы удобно цеплять за крюк на стене.
Вот крупно элементы потолочной части конструкции
2. черенки от лопат одеть в мягкий утеплитель. На расстоянии 10-15 см от внешнего края сверлим отверстие для болта М6/60, вкручиваем болт и закрепляем его гайками таким образом, что бы он торчал поперек в каждую сторону.
Цель этого болта — не дать веревке соскочить с перекладины.
ОК, все собрано, приступаем к тестированию.
Делай раз: загоняем авто в гараж (паркуюсь соотв-но максимально залезая под крепеж бокса)
Делай два: раскрываю замки перекладин MontBlanc, вставляю перекладины (черенок), одеваю веревки на концы, продевая их за описанные ранее болты.
Делай три: тяну за две веревки одновременно — бокс поднимается над автомобилем
Делай четыре: крепим кольцо веревки на настенном крюке.
Всё — бокс висит, машину можно при желании выгонять.
По времени операция занимает 5-10 минут (включая загнать/выгнать автомобиль).
Положение бокса "для обслуживания" опробовал, действительно удобно — я в нем храню зимой разные летние вещи, что бы разгрузить дом. Для фиксации бокса в положении "для обслуживания" служат крюки на стене, которые находятся почти под потолком (важно: не делайте их вше, чем сможете уверенно дотянуться!).
Из дополнительных идей: думал над тем, что бы использовать эл. лебедку. Но решил сначала протестировать ручной способ. Понял что устраивает и готов не тратиться на лебедку. Тем более что она значительно удорожает проект (нужно будет еще несколько роликов, что бы объединить две веревки в одну и отвести в сторону лебедки).
Спасибо что прочитали весь текст. Возможно не все детально расписал, но надеюсь что получилось доходчиво. Если остались вопросы — спрашивайте, расскажу.
Как подвесить бокс в гараже
Автобокс. Часть 3 "Подвес к потолку (черновой вариант)"

Продолжим…
Бокс куплен — Часть 1 "Выбор и покупка"
Поперечины заменены — "Смена поперечин на LUX"
Конструкция усилена Часть 2 "Усиление"
А сегодня привезли с Новокузнецка новую шину для запаски (диск доставили ранее), заберу все в месте в пятницу на базе у друга, спасибо ему большое! Запаска, докатка, автобокс… все это занимает кучу места, а ведь столько работ предстоит в гараже… Те кто знает меня давно, в курсе как я отношусь к вещам и люблю порядок, а так же не люблю кого-то привлекать и стараюсь все делать своими силами… Да, бокс не сильно тяжелый, я дважды в одиночку ставил и снимал его на крышу! Но! В планах держать в нем запаску и не вытаскивать ее оттуда. Поэтому было принято решение сразу закрепить его к потолку!
Внимание! Друзья, сразу говорю, этот вариант — временный, сделан за два дня с использованием только дрели и фурнитуры. В дальнейшем планируется механическая или ручная "крутилка", основание над боксом для меньшей нагрузки на "подвес" (пролет меж балками — 2 метра, и варить что-то не было пока желания). Поэтому прошу воздержаться от жесткой критики, но очень приветствую советы по изменению конструкции )))
Закупил кучу (нужной и ненужной) фурнитуры… А, пригодится и в других делах…

И быстренько сварганил конструкцию…

И вот он первый промах: решил тянуть к задней стенке, но уже потом сообразил — в верхнем положении тросы будут тереть по боксу. Ну да ладно, одна лишняя дырка в балке… Может даже и пригодится )))
переделал и сместил "натяг" к правой стене… Смотрится отлично!


Только тянуть оказалось не так легко ))) Да уж. как далеко ты отодвинулось, мое высшее образование технолога машиностроителя… (( Полез в инет изучать вопросы блоков… Оставлю подробности, скажу только спасибо технологии "Полиспаст" и хорошим ребятам, конструкции которых посмотрел и воспользовался — detachments , Larico2 и Preucisch .
Вариант 2 сменился на 1…

…правда пришлось еще потратиться на дополнительные блоки, а они у нас не дешевые ((( Еже пару часов работы и конструкция готова!
Подвес грузового бокса в гараже с подъемом и опусканием

Еще до приобретения бокса для перевозки груза я задумался о том где же его мне хранить.
К счастью у меня есть гараж (пусть не свой, а арендованный, но все же есть) с металлическими стенами и бетонным потолком. Поэтому я начал продумывать как разместить бокс удобно.
Не буду описывать весь процесс изысканий, перейду сразу к найденному и реализованному решению: решено было сделать крепление на тросах, позволяющее зафиксировать бокс в двух положениях: "хранение" (у потолка), "обслуживание" (на уровне груди), а также легкое перемещение между этими положениями и снятие/установку на автомобиль.
Первое что я сделал, это обмерял гараж, и нашел габаритные размеры как автомобиля, так и бокса. Затем отрисовал всё в масштабе в программе Microsoft Visio, затем начал в ней играться (Visio позволяет легко перемещать предметы на листе), пытаясь найти лучшее расположение элементов.
Идеально было бы закрепить бокс по центру потолка гаража, прямо над автомобилем — что бы при подъеме/опускании бокс перемещался только по вертикали, без смещения вбок. К сожалению у меня в гараже по его осевой линии проходит труба системы пожаротушения, поэтому закрепить бокс по центру не получилось (по той же причине я не стал приобретать и устанавливать готовые решения для подвеса боксов).
В итоге я получил две схемы:


Visio позволяет легко точно определить размеры элементов — все было описано, измерено и я поехал в магазин за материалами.
Самым сложным вопросом для меня было правильно определить нагрузку на элементы (конечно очень не хотелось уронить бокс ни на себя ни на автомобиль) и как следствие выбрать правильные крепления и ролики. Сразу скажу — на фото финальный вариант, перед которым был еще промежуточный — крайние к стене ролики крепились на анкерном болту с диаметром болта примерно 3 мм. — после примерно полугода эксплуатации он начал разгибаться — пришлось заменить на 5-6мм.
Что в итоге потребовалось:
— ролики центральные = 4 шт
— ролики боковые (двойные) = 2 шт
— крюк для зацепа веревки = 2 + 2 шт
— собственно веревка = метров 20 (брал с запасом)
— черенок для лопаты = 2 шт
— утеплитель для водопроводных труб (серый мягкий) = 2 шт
— болт М6/60мм + гайки = 4 шт
Поясню для чего потребовались черенки для лопат — подвес задумывался как универсальный, что бы можно было при необходимости хранить любые длинномеры (трубы, серфинг и т.д.), поэтому нужны были горизонтальные (при этом мягкие снаружи) перекладины. Черенки оказались идеальными по соотношению цена/крепость/длина.
Собственно реализация:
1. собрать веревочную конструкцию — по схеме из Visio прикрутить ролики к потолку, крюки к стене, продеть веревку, сделав 4 кольца, которыми будем цеплять груз.
Также на той части веревки, которую будем тянуть вниз делаю кольцо, что бы удобно цеплять за крюк на стене.

2. черенки от лопат одеть в мягкий утеплитель. На расстоянии 10-15 см от внешнего края сверлим отверстие для болта М6/60, вкручиваем болт и закрепляем его гайками таким образом, что бы он торчал поперек в каждую сторону.
Цель этого болта — не дать веревке соскочить с перекладины.
ОК, все собрано, приступаем к тестированию.

Делай два: раскрываю замки перекладин MontBlanc, вставляю перекладины (черенок), одеваю веревки на концы, продевая их за описанные ранее болты.
Подвешиваем автобокс под потолок. Лифт для автобокса

Раньше у меня был 800 Motion, который висел вертикально на балконе.
После покупки 900 Motion конструкция еле вмещалась, к тому же хотелось использовать автобокс для полноценного хранения хлама внутри него.
Сделал горизонтальный подвес под потолок на роликах с полиспатами для ручного подъёма без использования лебедки.
Сейчас автобокс нагружен вещами на 50 кг + сам автобокс 24 кг + траверсы, рыб-болты, гайки и пр. утяжеляют конструкцию где-то на 2-4 кг. Итого около 80 кг. Мой вес как раз 80 кг, поднимаю за счёт полиспатов хоть и с трудом, но сам, без дополнительных приспособлений.
Высота подъёма 2 метра, высота потолка 2,5 метра.
Дальше всё видно по фото/эскизу.
Единственное где промахнулся — внизу, закрепив карабин, оказалось, что в нижнем положении бокс не достаёт до пола 1 метр, а карабин уже упирается в блоки — забыл про то, что катет короче гипотенузы. Надо туда вниз большое кольцо и через него пропустить карабин, который цеплять к кольцу в стене.
Либо сделать как тут — с помощью петли-змейки: www.drive2.ru/l/8122340/
Кстати спасибо за консультации Preucisch — благодаря его фотоотчёту и делал, только не поперек, а вдоль + смотрел на такое решение: www.drive2.ru/l/2157088/, но добавил полиспаты — с ними реально поднять вес в 2 раза больше, а опускать вообще легко.
Если кому тяжело поднимать будет, можно приделать мех. лебедку от яхты или аналог — главное чтобы стопорилась и работала как на подъём так и на спуск, типа такого.
По деньгам не помню сколько вышло — покупал ещё сверла и пр. — на кассе отдал около 4 тысяч.
На самом деле можно дешевле было и проще сделать, но я планирую загрузить бокс на полную — т.е. на 75 разрешенных килограмм, а, во-вторых, внизу хранятся коляски — безопасность превыше всего.
При монтаже на каждом анкер-крюке с помощью подвешенного кольца подтягивался, т.е. 1 анкер 80 кг держит.
Сейчас в автобокс засунул 2 складных велосипеда (спасибо туле за то, что делает самые широкие и высокие автобоксы — аналогов не нашёл) и кучу хлама
















Запчасти
Skoda Yeti 2013, 105 л. с. — другое
Комментарии 21

А зачем это все городить для хлама? Хлам можно выкинуть на помойку а бокс повесить.
Если в отппск ехать куда хлам?

Очень хорошо получилось, но я наверное что-то пропустил — для чего по два подвеса в потолок на каждый угол, по одному можно поставить?


Я неясно выразился: для чего 8 дюбелей в потолок, а не 4?
Хочу так сделать:


Таких блоков не было в магазине + распределить нагрузку

Спасибо за ответ.
Сейчас смотрю цены — подороже так получится.

А я сделал с электроприводом.

Классно сделано. Видел такое в гараже делали, чтобы меньше места занимал под потолком. А это вы получается в подъезде что-ли повесили?

Спс, я еще потом добавил 4 блока чтобы двойные полиспаты были — с ними в 2 раза легче поднимать.
Да, это наш закуток с тамбурной дверью. Видеонаблюдение и скуд свои стоят.

Есть же не очень дорогое подъемное устройство для бокса Thule MultiLift 572
Разве что для занятия свободного времени )

отстой этот мультилифт — смотрел его вживую перед этой затеей
1) поднимать им можно только пустой автобокс — он хлипкий (на сайтах пишут что грузоподъёмность до 100 кг, но в инструкции указано, что поднимать только пустой бокс, да и на ощупь он не внушает доверия). Мой поднимает автобокс (27кг) + 100+ кг хлама внутри него спокойно, а с системой двойных полиспатов ещё и легко (один поднимаю — опускаю);
2) основной механизм находится над центром бокса — соотв. бокс можно поднять на высоту (от верха бокса до потолка) не более 30-40 см, то есть теряется пространство, а там где потолки 2,5 метра вообще ни о чём. Мой я могу к потолку вплотную прижать и ходить под ним спокойно;
3) цена около 10 тыс — у моего себестоимость 4 (5 с двойными полиспатами) тысяч;
4) если с троссами, можно и барабан (для яхт есть — продают — вперед-назад со стопором) для удобства приделать, или вручную спокойно поднимать-опускать, вывести куда надо — хоть влево, хоть вправо, хоть на 6 метров вверх — ограничений нет, а у тули кочерга меньше метра, которой крутить ухо механиза надо, а если высота большая, то стремянку ещё иметь и с неё этим секасом заниматься;
5) по трудозатратам я думаю примерно одинаково монтаж-сборка;
Короче на мой взгляд красная цена тулевской поделке не более 2 тысяч, дороже я бы себе не купил, да и всё равно бы не купил с учётом п.1 и 2. Если не хочется руки марать, можно купить лифт для велосипедов, ну в крайнем случае 2 штуки — по грузоподъёмности как тулевский мультилифт будет

Не думал об этом, наверное, потому что в живую не видел. Только видео ролик.
Понятно, буду делать из подручных средств. Спасибо за развёрнутый ответ.

вот немец писал что положил во внутрь палатку и пластины погнулись (прикрепил) — если погуглить много такого находится, ну и то что веревки 5 мм (тоненькие) и короткие в компл. идут


Не думал об этом, наверное, потому что в живую не видел. Только видео ролик.
Понятно, буду делать из подручных средств. Спасибо за развёрнутый ответ.
ещё прикрепил картинку на какую высоту максимум вы сможете с мультилифтом прижать к потолку (и то стрёмно мет. пластиной пробить-поцарапать бокс — чувак там очень близко прижал


Благодарю.
У меня гараж очень низкий, я там машину не ставлю. Мне просто с пола и от стен бокс убрать. Я сделаю крепление в дальнем углу под потолком, что бы головой не биться )
Скорей всего подобное, только из хлама всякого, который в гараже есть )

detachments
отстой этот мультилифт — смотрел его вживую перед этой затеей
1) поднимать им можно только пустой автобокс — он хлипкий (на сайтах пишут что грузоподъёмность до 100 кг, но в инструкции указано, что поднимать только пустой бокс, да и на ощупь он не внушает доверия). Мой поднимает автобокс (27кг) + 100+ кг хлама внутри него спокойно, а с системой двойных полиспатов ещё и легко (один поднимаю — опускаю);
2) основной механизм находится над центром бокса — соотв. бокс можно поднять на высоту (от верха бокса до потолка) не более 30-40 см, то есть теряется пространство, а там где потолки 2,5 метра вообще ни о чём. Мой я могу к потолку вплотную прижать и ходить под ним спокойно;
3) цена около 10 тыс — у моего себестоимость 4 (5 с двойными полиспатами) тысяч;
4) если с троссами, можно и барабан (для яхт есть — продают — вперед-назад со стопором) для удобства приделать, или вручную спокойно поднимать-опускать, вывести куда надо — хоть влево, хоть вправо, хоть на 6 метров вверх — ограничений нет, а у тули кочерга меньше метра, которой крутить ухо механиза надо, а если высота большая, то стремянку ещё иметь и с неё этим секасом заниматься;
5) по трудозатратам я думаю примерно одинаково монтаж-сборка;
Короче на мой взгляд красная цена тулевской поделке не более 2 тысяч, дороже я бы себе не купил, да и всё равно бы не купил с учётом п.1 и 2. Если не хочется руки марать, можно купить лифт для велосипедов, ну в крайнем случае 2 штуки — по грузоподъёмности как тулевский мультилифт будет
Крепление автобокса в гараже
Гараж – это, прежде всего, гараж, постоянное место жительства вашего автомобиля. Как и любой дом, он должен быть удобным и функциональным.

Наша компания поможет сделать гараж тем местом, в которое вы бы хотели бывать чаще. Как и в инновационном гараже наших клиентов, историю которых показали на канале НТВ в программе «Чудо техники».

Компактные шкафы, удобные полки и кронштейны: GarageTech готов предложить вам множество аксессуаров для поддержания вашего гаража в идеальном состоянии.

Вам больше не нужно строить башни из колес где-нибудь в углу гаража, специально для них GarageTech предлагает использовать удобный кронштейн для подвешивания.

Кронштейн можно расположить на удобной для вас высоте, а колеса можно «установить» в элегантные чехлы, которые благодаря ручке упрощают транспортировку. Мягкие боковые накладки предотвращают царапание дисков друг о друга при хранении и транспортировке.

Не менее удобен вариант хранения колес внизу, равно как и расположение кронштейнов друг под другом в два-три горизонтальных ряда.

Иван – звезда программы Fazenda на Первом канале 7 июня 2015 года, в которой GarageTek оборудовал гараж на 2 машины и оценил поддержку колес GarageTek.

С электрическим подъемником TekLift хранить шины под потолком так же легко, как и на дне стены.

У тебя есть машина. Возможно, у вас еще есть автобокс – багажник на крышу. И у GarageTech есть решение для его удобного хранения: точка подъема с автоматической блокировкой для предотвращения случайных падений, которая крепится к потолку.

С помощью стопора колеса GarageTech вы обязательно остановитесь там, где вам нужно, не повредив свой автомобиль или белоснежные панели вашего оборудования во время парковки. Упор можно установить на любое напольное покрытие, например, как здесь, на полимерное.

GarageTech всегда стремится сочетать функциональность и красоту. Экологичный и прочный пол из ПВХ-плитки не только прослужит долго, но и будет радовать глаз. Кстати, при необходимости на этот вид обшивки можно установить и стопор колеса.

Салон в квадрате – хорошая машина в хорошем гараже!

Хозблоки ГаражТек также идеально подходят для хранения мини-автомобилей для ваших детей, но при желании они могут стать настоящим гаражом (3 х 6 м) для настоящей машины благодаря модулям расширения.
Для людей, которые предпочитают путешествовать с семьей на собственном автомобиле и вынуждены возить с собой много вещей, багажник на крышу является необходимым аксессуаром. Он может с комфортом вмещать большие грузы, которые не помещаются в задней части автомобиля, и перевозить спортивный инвентарь, такой как лыжи, сноуборды или велосипеды. Багажник обычно не входит в комплект поставки автомобиля, но его можно купить или собрать вручную.

Виды и фото самых распространенных конструкций
Автомобильные багажники на крышу бывают четырех основных типов:
- Классический. В противном случае их называют универсальными или базовыми. Они представляют собой конструкцию из металлических поперечин и поперечин, прикрепленных к крыше автомобиля. Их главное преимущество – простота крепления и возможность переделки конструкции для перевозки спортивного инвентаря или установки гаража.
- Перевозки. Этот вид предназначен для любителей активного отдыха, туристов, а также охотников и рыбаков. Такой грузовой отсек больше похож на корзину. Помимо основания, у него есть борта, к которым можно крепить осветительные элементы, бамперы и запаски.
- Кататься на велосипеде. Конструкция представляет собой систему застежек, фиксирующих спортивный инвентарь.
- Автобокс. Они твердые и мягкие. Жесткие багажники сделаны из ударопрочного пластика, а мягкие – из стекловолокна и выглядят как отличные дорожные сумки. Автобокс из стеклопластика – лучший вариант для опытного путешественника, ведь вещи, перевозимые в таком багажнике, надежно защищены от грязи, ветра и осадков. Кроме того, конструкция имеет хорошую аэродинамическую форму и не слишком увеличивает расход топлива при полной нагрузке.
Производство багажников в виде боксов – новое, но очень перспективное направление. Самые дешевые модели российского производства стоят от 20000 рублей, но сделать автобокс на крышу авто можно своими руками.
Багажник на крышу автомобиля своими руками
Чтобы сделать багажник на крышу для авто своими руками, понадобятся определенные навыки и оборудование. Работа проходит в несколько этапов:
- Подготовка: определение конструкции багажника для автомобиля, замер и составление чертежа будущего изделия, закупка материалов.
- Производство: изготовление деталей и крепежа, монтаж.
- Крепление: крепление продольных и поперечных планок, установка готового стеллажа или автобокса.
Основным фактором при выборе конструкции багажника на крышу является его назначение. Если вам нужно перевезти не тяжелые, а крупногабаритные грузы, подойдет универсальный или транспортный вид. Для тех, кто хочет освободить место в машине от вещей, которые больше не используются, но необходимы, автобокс станет идеальным решением.
Внимание! Однако самостоятельно сделать автомобильный бокс на крышу непросто, поэтому у любителей ручной работы больше популярны классические или экспедиционные чемоданы.
Выбор материала и инструмента
Делая багажник на крышу, необходимо учитывать, что максимальная нагрузка на крышу не должна превышать 70 кг. Конструкция будет намного проще, если для ее изготовления использовать алюминиевые профили. Они легкие, гибкие и прочные, что в сочетании с их небольшим весом делает этот материал идеальным для достижения цели. Альтернативным решением могут быть тонкостенные профильные трубы. Они также прочные и устойчивые к коррозии, но их стоимость почти в 2 раза ниже, чем у алюминиевых.
Если же есть желание сделать автобокс, лучше остановиться на мягкой конструкции, ведь изготовление футляра из стеклопластика технологически сложно и дорого. В качестве материала для мягкого бокса используется брезент или баннерная ткань или стекловолокно плотностью не менее 300 г / м2.
Дополнительно вам потребуются следующие расходные материалы и инструменты:
- болты и хомуты;
- полиуретановая пена;
- болгарка по металлу;
- сварочный аппарат;
- шлифовальный;
- грунтовка и автомобильная краска.
Необязательно подбирать краску именно под цвет автомобиля. Дизайн может выглядеть эстетично даже без покраски.

Замеры конструкции и составление чертежа
Если в конструкции станка предусмотрены поручни, то для изготовления перекладин достаточно просто замерить расстояние между ними. Если они отсутствуют, потребуется произвести точные замеры длины и ширины кровли, на основании чего составляется чертеж будущей конструкции. При рисовании 3D модели недостаточно учитывать только габариты периметра грузового пространства. Требуются следующие дополнительные параметры:
- высота стола или ящика;
- место крепления поперечных перемычек и расстояние между ними;
- количество креплений: если длина кровли больше 2,5 м, конструкция должна иметь 6 опор. При меньших габаритах достаточно четырех.
За основу модели для софтбокса можно взять чертежи, находящиеся в открытом доступе в Интернете, и подогнать их под нужный размер. Схемы транспортировочных стеллажей достаточно просты и их можно изготовить самостоятельно, но проще построить на готовых решениях.
Конструкция транспортировочной стойки

Сварочные работы
Сделать экспедиционную стойку своими руками невозможно без сварки. Выполняются в следующем порядке:
- сварка периметра конструкции (нижняя и боковая);
- сварка поперечных перемычек, повышающих прочность низа конструкции. При необходимости из профилей делают решетку.
- крепление вертикальных боковых стоек. Их приваривают к нижней и верхней части ствола, объединяя их в своего рода корзину;
- удаление сварных нахлестов металла в результате сварки, шлифовки деталей элементов конструкций с последующей грунтовкой.
Важно! При наличии рейлингов готовая конструкция фиксируется на них с помощью крепежа. Если рейлинги не предусмотрены, то на крышу автомобиля устанавливаются специальные кронштейны.
Изготовление крепежей
Сделать крепеж своими руками можно двумя способами:
- Из зажима прикрепить глушитель к любой машине. Для достижения желаемого результата просто вырежьте центр из плоской планки и у вас получится универсальная застежка, которая идеально подойдет к перекладинам и аркам туловища.
- Используйте U-образные болты с резьбой. Замените гайки «барашковыми гайками», чтобы облегчить отвинчивание и фиксацию крепежа.


Чтобы крепежи более плотно прилегали к аркам и перекладинам конструкции, рекомендуется использовать резиновые прокладки.
Крепление поперечин
Крепление перекладин очень важно. Для правильной установки автобокса на крышу автомобиля необходимо выдерживать расстояние между ними не более 50 см. Если конструкцией автомобиля предусмотрено наличие рейлингов, поперечины крепятся болтами.
Если рейлинги отсутствуют, возможны 3 варианта крепления:
- в стандартные прорези для установки багажника. Стойки фиксируются болтами, входящими в монтажный комплект;
- на желобах с помощью специальных зажимов;
- на гладкой крыше. Упоры фиксируются с помощью специально разработанного набора для крепления под дверью.
При подключении автобокса к крыше особое внимание следует уделить его расположению. Его нельзя продолжать или приостанавливать. Он фиксируется крепежными скобами, которые обхватывают поперечины снизу и вставляются в специальные отверстия в нижней части ствола шкафа.
Обеспечение аэродинамики и фиксации бортов
Установка самодельного багажника на крышу может значительно ухудшить аэродинамический профиль автомобиля, снизить устойчивость автомобиля на поворотах и увеличить расход топлива на открытых дорогах. Чтобы этого не произошло, необходимо закрепить переднюю и заднюю стойки конструкции под острым углом к поверхности крыши. Это достигается за счет разницы между длиной багажника и его основания. Точные размеры и угол наклона рассчитываются в процессе проектирования.
Эстетические штрихи
Чтобы самодельный багажник стал гармоничным дополнением к автомобилю, а не непонятной конструкцией на крыше, после сварки его необходимо отшлифовать, загрунтовать и покрасить. Крепежные болты можно скрыть декоративными гайками.
Софтбокс можно сделать оригинальным, напечатав на ткани какой-нибудь необычный узор. Такую работу можно заказать в рекламных агентствах, специализирующихся на размещении рекламы на автомобильных тентах.
Дополнительные устройства и приборы
Expedition Rack имеет прочные стенки, на которые можно прикрепить дополнительное оборудование, такое как противотуманные фары, ветровые дефлекторы или дополнительную антенну.
19 декабря 2018 г
Гарантированного производителем качества недостаточно: чтобы автобокс работал долго, за ним нужно правильно ухаживать, правильно хранить.
Мы расскажем, как это сделать, чтобы случайно не повредить.
Как ухаживать за автобоксом
Багажник на крышу Autobox – это полезный и прочный элемент, поэтому для его ухода не требуется никаких сверхсложных усилий. Например, нет необходимости в отдельном температурном режиме для хранения – АБС-пластик отлично переносит влагу и низкие температуры.
- Промыть водой с мылом, протереть мягкой тканью. Пластик не требует сверхдорогих чистящих средств. Более того, не мойте его растворами спирта, хлора, нашатырного спирта или масла. Горячий мыльный раствор идеален для ухода за гаражом.
- Никаких жестких щеток или мочалок – используйте мягкую ткань, например, для чистки мониторов. Функционально протирание щеткой коробку не повредит, а вот глянцевое или матовое покрытие поцарапать можно. Использование мягкой ветоши – гарантия того, что автобокс долгое время будет выглядеть как новый.
- Смажьте все движущиеся части коробки смазкой, чтобы они не ржавели. И обработайте замок силиконовым спреем, чтобы он не замерз, если зимой будете пользоваться шкафом-сундучком.
- Снимите автобокс перед тем, как отправиться на автомойку. Бокс не требует испытания под высоким давлением.
Перед тем как убрать багажник на зиму, снимите его, вымойте изнутри и снаружи, просушите, смажьте замки и движущиеся детали, затем снова уберите в крышку автобокса. Вынув багажник на следующий сезон, вы можете сразу же использовать его, не опасаясь, что он будет ржавым или слишком пыльным.
Как хранить автобокс в гараже
Как уже было сказано выше, автобокс не нуждается в определенных температурных условиях и условиях хранения. Что важно:
- хранить только в горизонтальном положении, иначе он может деформироваться;
- рекомендуется использовать чехол;
- и специальные кронштейны или лифт, который можно установить в гараже;
- перед отправкой ящика в футляр на длительное время следует смазать петли.
Вот и все: при соблюдении этих условий ствол легко перезимует несколько месяцев в гараже.
Как подвесить бокс в гараже
Подвес грузового бокса в гараже с подъемом и опусканием

Еще до приобретения бокса для перевозки груза я задумался о том где же его мне хранить.
К счастью у меня есть гараж (пусть не свой, а арендованный, но все же есть) с металлическими стенами и бетонным потолком. Поэтому я начал продумывать как разместить бокс удобно.
Не буду описывать весь процесс изысканий, перейду сразу к найденному и реализованному решению: решено было сделать крепление на тросах, позволяющее зафиксировать бокс в двух положениях: "хранение" (у потолка), "обслуживание" (на уровне груди), а также легкое перемещение между этими положениями и снятие/установку на автомобиль.
Первое что я сделал, это обмерял гараж, и нашел габаритные размеры как автомобиля, так и бокса. Затем отрисовал всё в масштабе в программе Microsoft Visio, затем начал в ней играться (Visio позволяет легко перемещать предметы на листе), пытаясь найти лучшее расположение элементов.
Идеально было бы закрепить бокс по центру потолка гаража, прямо над автомобилем — что бы при подъеме/опускании бокс перемещался только по вертикали, без смещения вбок. К сожалению у меня в гараже по его осевой линии проходит труба системы пожаротушения, поэтому закрепить бокс по центру не получилось (по той же причине я не стал приобретать и устанавливать готовые решения для подвеса боксов).
В итоге я получил две схемы:
автомобиль с установленным на нем боксом
бокс в различных его положениях
Visio позволяет легко точно определить размеры элементов — все было описано, измерено и я поехал в магазин за материалами.
Самым сложным вопросом для меня было правильно определить нагрузку на элементы (конечно очень не хотелось уронить бокс ни на себя ни на автомобиль) и как следствие выбрать правильные крепления и ролики. Сразу скажу — на фото финальный вариант, перед которым был еще промежуточный — крайние к стене ролики крепились на анкерном болту с диаметром болта примерно 3 мм. — после примерно полугода эксплуатации он начал разгибаться — пришлось заменить на 5-6мм.
Что в итоге потребовалось:
— ролики центральные = 4 шт
— ролики боковые (двойные) = 2 шт
— крюк для зацепа веревки = 2 + 2 шт
— собственно веревка = метров 20 (брал с запасом)
— черенок для лопаты = 2 шт
— утеплитель для водопроводных труб (серый мягкий) = 2 шт
— болт М6/60мм + гайки = 4 шт
Поясню для чего потребовались черенки для лопат — подвес задумывался как универсальный, что бы можно было при необходимости хранить любые длинномеры (трубы, серфинг и т.д.), поэтому нужны были горизонтальные (при этом мягкие снаружи) перекладины. Черенки оказались идеальными по соотношению цена/крепость/длина.
Собственно реализация:
1. собрать веревочную конструкцию — по схеме из Visio прикрутить ролики к потолку, крюки к стене, продеть веревку, сделав 4 кольца, которыми будем цеплять груз.
Также на той части веревки, которую будем тянуть вниз делаю кольцо, что бы удобно цеплять за крюк на стене.
Вот крупно элементы потолочной части конструкции
2. черенки от лопат одеть в мягкий утеплитель. На расстоянии 10-15 см от внешнего края сверлим отверстие для болта М6/60, вкручиваем болт и закрепляем его гайками таким образом, что бы он торчал поперек в каждую сторону.
Цель этого болта — не дать веревке соскочить с перекладины.
ОК, все собрано, приступаем к тестированию.
Делай раз: загоняем авто в гараж (паркуюсь соотв-но максимально залезая под крепеж бокса)
Делай два: раскрываю замки перекладин MontBlanc, вставляю перекладины (черенок), одеваю веревки на концы, продевая их за описанные ранее болты.
Делай три: тяну за две веревки одновременно — бокс поднимается над автомобилем
Делай четыре: крепим кольцо веревки на настенном крюке.
Всё — бокс висит, машину можно при желании выгонять.
По времени операция занимает 5-10 минут (включая загнать/выгнать автомобиль).
Положение бокса "для обслуживания" опробовал, действительно удобно — я в нем храню зимой разные летние вещи, что бы разгрузить дом. Для фиксации бокса в положении "для обслуживания" служат крюки на стене, которые находятся почти под потолком (важно: не делайте их вше, чем сможете уверенно дотянуться!).
Из дополнительных идей: думал над тем, что бы использовать эл. лебедку. Но решил сначала протестировать ручной способ. Понял что устраивает и готов не тратиться на лебедку. Тем более что она значительно удорожает проект (нужно будет еще несколько роликов, что бы объединить две веревки в одну и отвести в сторону лебедки).
Спасибо что прочитали весь текст. Возможно не все детально расписал, но надеюсь что получилось доходчиво. Если остались вопросы — спрашивайте, расскажу.
Крепление автобокса в гараже
Гараж – это, прежде всего, гараж, постоянное место жительства вашего автомобиля. Как и любой дом, он должен быть удобным и функциональным.

Наша компания поможет сделать гараж тем местом, в которое вы бы хотели бывать чаще. Как и в инновационном гараже наших клиентов, историю которых показали на канале НТВ в программе «Чудо техники».

Компактные шкафы, удобные полки и кронштейны: GarageTech готов предложить вам множество аксессуаров для поддержания вашего гаража в идеальном состоянии.

Вам больше не нужно строить башни из колес где-нибудь в углу гаража, специально для них GarageTech предлагает использовать удобный кронштейн для подвешивания.

Кронштейн можно расположить на удобной для вас высоте, а колеса можно «установить» в элегантные чехлы, которые благодаря ручке упрощают транспортировку. Мягкие боковые накладки предотвращают царапание дисков друг о друга при хранении и транспортировке.

Не менее удобен вариант хранения колес внизу, равно как и расположение кронштейнов друг под другом в два-три горизонтальных ряда.

Иван – звезда программы Fazenda на Первом канале 7 июня 2015 года, в которой GarageTek оборудовал гараж на 2 машины и оценил поддержку колес GarageTek.

С электрическим подъемником TekLift хранить шины под потолком так же легко, как и на дне стены.

У тебя есть машина. Возможно, у вас еще есть автобокс – багажник на крышу. И у GarageTech есть решение для его удобного хранения: точка подъема с автоматической блокировкой для предотвращения случайных падений, которая крепится к потолку.

С помощью стопора колеса GarageTech вы обязательно остановитесь там, где вам нужно, не повредив свой автомобиль или белоснежные панели вашего оборудования во время парковки. Упор можно установить на любое напольное покрытие, например, как здесь, на полимерное.

GarageTech всегда стремится сочетать функциональность и красоту. Экологичный и прочный пол из ПВХ-плитки не только прослужит долго, но и будет радовать глаз. Кстати, при необходимости на этот вид обшивки можно установить и стопор колеса.

Салон в квадрате – хорошая машина в хорошем гараже!

Хозблоки ГаражТек также идеально подходят для хранения мини-автомобилей для ваших детей, но при желании они могут стать настоящим гаражом (3 х 6 м) для настоящей машины благодаря модулям расширения.
Для людей, которые предпочитают путешествовать с семьей на собственном автомобиле и вынуждены возить с собой много вещей, багажник на крышу является необходимым аксессуаром. Он может с комфортом вмещать большие грузы, которые не помещаются в задней части автомобиля, и перевозить спортивный инвентарь, такой как лыжи, сноуборды или велосипеды. Багажник обычно не входит в комплект поставки автомобиля, но его можно купить или собрать вручную.

Виды и фото самых распространенных конструкций
Автомобильные багажники на крышу бывают четырех основных типов:
- Классический. В противном случае их называют универсальными или базовыми. Они представляют собой конструкцию из металлических поперечин и поперечин, прикрепленных к крыше автомобиля. Их главное преимущество – простота крепления и возможность переделки конструкции для перевозки спортивного инвентаря или установки гаража.
- Перевозки. Этот вид предназначен для любителей активного отдыха, туристов, а также охотников и рыбаков. Такой грузовой отсек больше похож на корзину. Помимо основания, у него есть борта, к которым можно крепить осветительные элементы, бамперы и запаски.
- Кататься на велосипеде. Конструкция представляет собой систему застежек, фиксирующих спортивный инвентарь.
- Автобокс. Они твердые и мягкие. Жесткие багажники сделаны из ударопрочного пластика, а мягкие – из стекловолокна и выглядят как отличные дорожные сумки. Автобокс из стеклопластика – лучший вариант для опытного путешественника, ведь вещи, перевозимые в таком багажнике, надежно защищены от грязи, ветра и осадков. Кроме того, конструкция имеет хорошую аэродинамическую форму и не слишком увеличивает расход топлива при полной нагрузке.
Производство багажников в виде боксов – новое, но очень перспективное направление. Самые дешевые модели российского производства стоят от 20000 рублей, но сделать автобокс на крышу авто можно своими руками.
Багажник на крышу автомобиля своими руками
Чтобы сделать багажник на крышу для авто своими руками, понадобятся определенные навыки и оборудование. Работа проходит в несколько этапов:
- Подготовка: определение конструкции багажника для автомобиля, замер и составление чертежа будущего изделия, закупка материалов.
- Производство: изготовление деталей и крепежа, монтаж.
- Крепление: крепление продольных и поперечных планок, установка готового стеллажа или автобокса.
Основным фактором при выборе конструкции багажника на крышу является его назначение. Если вам нужно перевезти не тяжелые, а крупногабаритные грузы, подойдет универсальный или транспортный вид. Для тех, кто хочет освободить место в машине от вещей, которые больше не используются, но необходимы, автобокс станет идеальным решением.
Внимание! Однако самостоятельно сделать автомобильный бокс на крышу непросто, поэтому у любителей ручной работы больше популярны классические или экспедиционные чемоданы.
Выбор материала и инструмента
Делая багажник на крышу, необходимо учитывать, что максимальная нагрузка на крышу не должна превышать 70 кг. Конструкция будет намного проще, если для ее изготовления использовать алюминиевые профили. Они легкие, гибкие и прочные, что в сочетании с их небольшим весом делает этот материал идеальным для достижения цели. Альтернативным решением могут быть тонкостенные профильные трубы. Они также прочные и устойчивые к коррозии, но их стоимость почти в 2 раза ниже, чем у алюминиевых.
Если же есть желание сделать автобокс, лучше остановиться на мягкой конструкции, ведь изготовление футляра из стеклопластика технологически сложно и дорого. В качестве материала для мягкого бокса используется брезент или баннерная ткань или стекловолокно плотностью не менее 300 г / м2.
Дополнительно вам потребуются следующие расходные материалы и инструменты:
- болты и хомуты;
- полиуретановая пена;
- болгарка по металлу;
- сварочный аппарат;
- шлифовальный;
- грунтовка и автомобильная краска.
Необязательно подбирать краску именно под цвет автомобиля. Дизайн может выглядеть эстетично даже без покраски.

Замеры конструкции и составление чертежа
Если в конструкции станка предусмотрены поручни, то для изготовления перекладин достаточно просто замерить расстояние между ними. Если они отсутствуют, потребуется произвести точные замеры длины и ширины кровли, на основании чего составляется чертеж будущей конструкции. При рисовании 3D модели недостаточно учитывать только габариты периметра грузового пространства. Требуются следующие дополнительные параметры:
- высота стола или ящика;
- место крепления поперечных перемычек и расстояние между ними;
- количество креплений: если длина кровли больше 2,5 м, конструкция должна иметь 6 опор. При меньших габаритах достаточно четырех.
За основу модели для софтбокса можно взять чертежи, находящиеся в открытом доступе в Интернете, и подогнать их под нужный размер. Схемы транспортировочных стеллажей достаточно просты и их можно изготовить самостоятельно, но проще построить на готовых решениях.
Конструкция транспортировочной стойки

Сварочные работы
Сделать экспедиционную стойку своими руками невозможно без сварки. Выполняются в следующем порядке:
- сварка периметра конструкции (нижняя и боковая);
- сварка поперечных перемычек, повышающих прочность низа конструкции. При необходимости из профилей делают решетку.
- крепление вертикальных боковых стоек. Их приваривают к нижней и верхней части ствола, объединяя их в своего рода корзину;
- удаление сварных нахлестов металла в результате сварки, шлифовки деталей элементов конструкций с последующей грунтовкой.
Важно! При наличии рейлингов готовая конструкция фиксируется на них с помощью крепежа. Если рейлинги не предусмотрены, то на крышу автомобиля устанавливаются специальные кронштейны.
Изготовление крепежей
Сделать крепеж своими руками можно двумя способами:
- Из зажима прикрепить глушитель к любой машине. Для достижения желаемого результата просто вырежьте центр из плоской планки и у вас получится универсальная застежка, которая идеально подойдет к перекладинам и аркам туловища.
- Используйте U-образные болты с резьбой. Замените гайки «барашковыми гайками», чтобы облегчить отвинчивание и фиксацию крепежа.


Чтобы крепежи более плотно прилегали к аркам и перекладинам конструкции, рекомендуется использовать резиновые прокладки.
Крепление поперечин
Крепление перекладин очень важно. Для правильной установки автобокса на крышу автомобиля необходимо выдерживать расстояние между ними не более 50 см. Если конструкцией автомобиля предусмотрено наличие рейлингов, поперечины крепятся болтами.
Если рейлинги отсутствуют, возможны 3 варианта крепления:
- в стандартные прорези для установки багажника. Стойки фиксируются болтами, входящими в монтажный комплект;
- на желобах с помощью специальных зажимов;
- на гладкой крыше. Упоры фиксируются с помощью специально разработанного набора для крепления под дверью.
При подключении автобокса к крыше особое внимание следует уделить его расположению. Его нельзя продолжать или приостанавливать. Он фиксируется крепежными скобами, которые обхватывают поперечины снизу и вставляются в специальные отверстия в нижней части ствола шкафа.
Обеспечение аэродинамики и фиксации бортов
Установка самодельного багажника на крышу может значительно ухудшить аэродинамический профиль автомобиля, снизить устойчивость автомобиля на поворотах и увеличить расход топлива на открытых дорогах. Чтобы этого не произошло, необходимо закрепить переднюю и заднюю стойки конструкции под острым углом к поверхности крыши. Это достигается за счет разницы между длиной багажника и его основания. Точные размеры и угол наклона рассчитываются в процессе проектирования.
Эстетические штрихи
Чтобы самодельный багажник стал гармоничным дополнением к автомобилю, а не непонятной конструкцией на крыше, после сварки его необходимо отшлифовать, загрунтовать и покрасить. Крепежные болты можно скрыть декоративными гайками.
Софтбокс можно сделать оригинальным, напечатав на ткани какой-нибудь необычный узор. Такую работу можно заказать в рекламных агентствах, специализирующихся на размещении рекламы на автомобильных тентах.
Дополнительные устройства и приборы
Expedition Rack имеет прочные стенки, на которые можно прикрепить дополнительное оборудование, такое как противотуманные фары, ветровые дефлекторы или дополнительную антенну.
19 декабря 2018 г
Гарантированного производителем качества недостаточно: чтобы автобокс работал долго, за ним нужно правильно ухаживать, правильно хранить.
Мы расскажем, как это сделать, чтобы случайно не повредить.
Как ухаживать за автобоксом
Багажник на крышу Autobox – это полезный и прочный элемент, поэтому для его ухода не требуется никаких сверхсложных усилий. Например, нет необходимости в отдельном температурном режиме для хранения – АБС-пластик отлично переносит влагу и низкие температуры.
- Промыть водой с мылом, протереть мягкой тканью. Пластик не требует сверхдорогих чистящих средств. Более того, не мойте его растворами спирта, хлора, нашатырного спирта или масла. Горячий мыльный раствор идеален для ухода за гаражом.
- Никаких жестких щеток или мочалок – используйте мягкую ткань, например, для чистки мониторов. Функционально протирание щеткой коробку не повредит, а вот глянцевое или матовое покрытие поцарапать можно. Использование мягкой ветоши – гарантия того, что автобокс долгое время будет выглядеть как новый.
- Смажьте все движущиеся части коробки смазкой, чтобы они не ржавели. И обработайте замок силиконовым спреем, чтобы он не замерз, если зимой будете пользоваться шкафом-сундучком.
- Снимите автобокс перед тем, как отправиться на автомойку. Бокс не требует испытания под высоким давлением.
Перед тем как убрать багажник на зиму, снимите его, вымойте изнутри и снаружи, просушите, смажьте замки и движущиеся детали, затем снова уберите в крышку автобокса. Вынув багажник на следующий сезон, вы можете сразу же использовать его, не опасаясь, что он будет ржавым или слишком пыльным.
Как хранить автобокс в гараже
Как уже было сказано выше, автобокс не нуждается в определенных температурных условиях и условиях хранения. Что важно:
- хранить только в горизонтальном положении, иначе он может деформироваться;
- рекомендуется использовать чехол;
- и специальные кронштейны или лифт, который можно установить в гараже;
- перед отправкой ящика в футляр на длительное время следует смазать петли.
Вот и все: при соблюдении этих условий ствол легко перезимует несколько месяцев в гараже.
Все о настенном креплении боксов Broomer
Хранение автобокса — условие не обязательное, но крайне желательное для продления срока его службы. Чаще всего демонтаж бокса приходится производить перед мойкой автомобиля, так как профессиональные аппараты высокого давления (АВД) легко деформирует покрытие бокса.

Если вы используете автобокс только в период летних отпусков или для поездок на дачу, то стоит задуматься о том, как подготовить свой бокс «Broomer Venture» к комфортной зимовке.
К счастью, автобокс не требует особых температурных условий и уровня влажности, поэтому вы сможете разместить его как в гараже, так и на балконе квартиры.
А с боксом от Broomer не придется задумываться о сложных системах крепления к стене или потолку (не кидать же его как придется!), так как производитель позаботился обо всем заранее и запатентовал собственную систему хранения — простую и удобную, при которой бокс не будет деформироваться.
Как подготовить автобокс к хранению
Чехол для бокса Broomer
Сумка для чехла Broomer
Перед отправкой бокса на зимовку, стоит его помыть: достаточно теплой воды, мыла и мягкой ткани. Не стоит применять жесткие щетки и средства с содержанием спирта или хлора, так как они испортят покрытие бокса.
А чтобы защитить бокс от пыли и солнечных лучей, советуем приобрести чехол, разработанный специально для «Broomer Venture».
Он сшит из легкой, но прочной ткани Oxford плотностью 150D. Этот материал часто используется при производстве рабочей одежды и туристических палаток, поэтому он надежен и неприхотлив в уходе.
Также к чехлу идет сумка для компактного хранения!
Про систему хранению автобоксов «Broomer Venture»

Компания Broomer внимательно относится к мелочам, поэтому при разработке бокса спроектировала и запатентовала собственную систему хранения. Благодаря ней вы можете повесить бокс как вертикально, так и горизонтально — он не будет деформироваться.
При покупке любого бокса «Broomer Venture» вы получите не только комплект стильных ключей и необходимую фурнитуру для крепления бокса к багажным поперечинам, но и два кронштейна, для которых на боксе уже предусмотрены пазы.
Бокс может повесить самостоятельно даже один человек, но если вы планируете разместить свой Broomer горизонтально, рекомендуем найти напарника — бокс довольно крупный, его размеры: 1870 х 890 х 400.
Как хранить автобокс в гараже
Сам по себе автобокс — долговечный автоаксессуар, который не теряет своих эксплуатационных свойств. Но чтобы сохранить его привлекательный внешний вид, стоит правильно хранить автобокс в периоды, когда данный аксессуар не используется по назначению. Наши специалисты составили список советов, способных максимально сохранить цвет, текстуру и/или глянцевое покрытие.
Советы по хранению автомобильных боксов
- Не мыть автомобильный бокс автохимией.
- В силу различных составов моющих средств и различного воздействия их компонентов на пластик крышки крайне не рекомендуется мыть автобоксы на автомойках. Такое агрессивное воздействие на поверхностный слой пластика может привести к быстрому изменению его цвета. У моделей эконом-сегмента есть огрехи производства и конструкции, которые в некоторых ситуациях могут принести много проблем — заклинивание замков «на морозе», деформация покрытия.
- У дешевых автобоксов не используются специальный УФ-пластификаторы в красочных материалах основного пластика (ABS). Поэтому при долгом воздействия солнечного света цвет бокса может безвозвратно измениться — проще говоря, «выгореть». Для исключения подобных негативных последствий стоит хранить автоаксессуар в специальном чехле, предварительно подобрав его по размерам (ШхВхД).

- Исключить внешние нагрузки на крышку.
- В гаражах всегда мало места, поэтому для экономии пространства в бокс можно положить множество вещей. Но не стоит грузить тяжелые грузы на изделие — крышка не рассчитана выдерживать высокие вертикальные нагрузки. Некоторые модели способны восстановить свой внешний вид после подобных деформаций, но большинство сохраняют белые следы краев заломов на пластике.

Как хранить автоаксессуры в гараже?
Для выполнения данных пунктов народные умельцы создают в гараже различные системы хранения — от специальных до самодельных.
- Под специальными подразумеваются газовые упоры, лифты и подвесные конструкции.
- Под самодельными — различные крепления на потолок, стену.
Больше различных вариантов хранения вы сможете найти в блогах на drive2.ru:
Как хранить грузовой кофр на балконе?
У рядового жителя в России на балконе всегда критически мало места, поэтому лучшим решением будет вертикальное хранение на стене или на подвесной системе на потолке.
На подвесе в условиях экономии пространства хранение не будет вызывать неудобств в случае наличия в квартире высоких потолков и надежной фиксации днища бокса лентами (веревками подвеса). Иначе при невыполнении этих двух условий проведение времени на балконе по любым причинам будут вызывать дискомофорт как минимум, как максимум могут привезти к увечиям из-за возможности возникновения несчастного случая
Хранение на стене лоджии является более приемлимым вариантом, так конструкция крепления к стене подразумевает жесткую фиксацию, а не люфт как в потолочном варианте. Внимательно просмотрите днище вашего автобокса — там будут прорези в днище, через которые днище затягивается с помощью скоб, «крабов». По расстоянию между прорезями отметьте на стене аналогичное расстояние и вмонтируйте крючки любого вида, главное чтобы у них была хорошая несущая способность. На эти крючки вы можете повесить бокс прорезями зацепив днище.
Автомагазин «Explorer» — это команда увлеченных одним делом людей. Команда, которая дорожит
своей репутацией и люди, которые искренне рады помочь Вам!Реквизиты (скачать реквизиты):
ИП Пономарев Сергей Владимирович
ИНН 665911735596
ОГРНИП: 321665800204821
БИК 046577971
р/с 40802810520400000920
к/с 30101810300000000971
ЕКАТЕРИНБУРГСКИЙ ФИЛИАЛ АО ЮНИКРЕДИТ БАНКА г. Екатеринбург